0
Skip to Content
T A L L E R S M G
Home
Work
Art
Open Menu
Close Menu
T A L L E R S M G
Home
Work
Art
Open Menu
Close Menu
Home
Work
Art
Vestíbulo Design House 2021
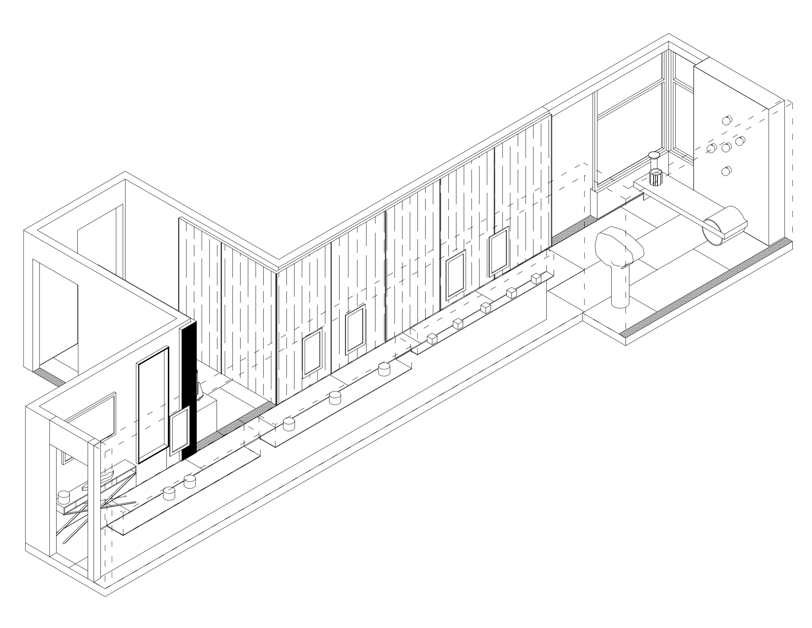
Acabados Técnicos Coyoacan
Casa Sierra Azul